Время работы:

ПН-ПТ 10:00 - 19:00
СБ-ВС выходной

Каталог товаров

Насос погружной взрывозащищенный Гном 53-10 Ех

Артикул: -
(0)
Доставка по России любой ТК (транспортной компанией)
Все товары сертифицированы
Основные характеристики
Страна производитель
Россия
Напряжение, В
380/660 В, трёхфазное
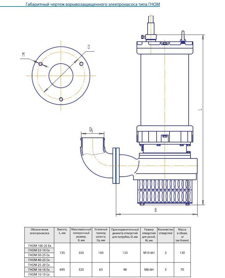
Диаметр присоединительных патрубков, мм
133 мм
Высота, мм
735 мм
Глубина погружения М (не менее)
0.4
Диаметр отверстия
M10-6H
Количество отверстий
3
КПД
55.00%
Макс. напор, (м)
10 м
Подача, м³/ч
35
Подпор
не менее 0.4 м
Потребляемая мощность, кВт
3.5 кВт
Потребляемый ток
9.4/3,9 А
Условный проход шланга
100 мм
Ширина, мм
350 мм
Масса, кг
130 кг
Взрывозащищённый передвижной центробежный электронасос ГНОМ 53-10 Ех предназначен для откачивания загрязненных грунтовых и производственных сточных вод температурой до 35 °С с рН=5-10, плотностью до 1100 кг/м , содержащих механические примеси до 10 % по массе и максимальным размером до 5 мм, а также с примесями сырой нефти до 10 % по массе, в составе которой может быть до 3 % серы в несвободном состоянии и парафина до 7 %.

Допускается применение электронасоса, для откачивания в аварийных режимах среды, содержащей до 100% сырой нефти.

Продолжительность пребывания, включая работу, в таких средах не более 5 часов в течение срока службы до капитального ремонта.

Электронасос соответствует взрывозащищенному электро-оборудованию группы II с взрывобезопасным уровнем взрыво-защиты, температурным классом ТЗ по ГОСТ Р 51330.0-99, видом взрывозащиты - взрывонепроницаемая оболочка подгруппы II В по ГОСТ Р 51330.1-99.

Маркировка взрывозащиты электронасоса 1ЕхdIIВТЗХ по ГОСТ Р 51330.0-99. Электронасос допускается эксплуатировать во взрыво-опасных зонах, классов 1 и 2, опасных по парогазовоздушным смесям категорий IIА и IIВ групп Т1, Т2 и ТЗ по ГОСТ Р 51330.13-99 согласно главы 7.3 "Правил устройства электроустановок", изд. 6 1998 г.

Климатическое исполнение и категория размещения электронасоса У* по ГОСТ 15150-69 при этом верхнее значение температуры окружающего воздуха не более плюс 40 С.

Степень защиты от внешних воздействий IР68 ГОСТ 14254-80.

Насос погружной взрывозащищенный Гном 53-10 Ех в продаже по цене 0 руб. в Интернет-магазине Проф-инструмент с доставкой в Екатеринбурге и Свердловской области. Звоните по телефону +8 (800) 302-10-51.