Время работы:

ПН-ПТ 10:00 - 19:00
СБ-ВС выходной

Каталог товаров

Насос погружной взрывозащищенный Гном 16-16 Ех

Артикул: -
(0)
Доставка по России любой ТК (транспортной компанией)
Все товары сертифицированы
Основные характеристики
Страна производитель
Россия
Напряжение, В
380/660 В, трёхфазное
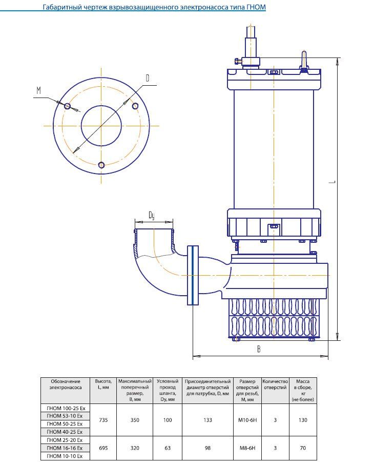
Диаметр присоединительных патрубков, мм
98 мм
Высота, мм
695 мм
Глубина погружения М (не менее)
0.4
Диаметр отверстия
М8-6Н
Количество отверстий
3
КПД
46.00%
Макс. напор, (м)
16 м
Подача, м³/ч
16
Подпор
не менее 0.4 м
Потребляемая мощность, кВт
2.4 кВт
Потребляемый ток
5,0/2,6 А
Условный проход шланга
63 мм
Ширина, мм
320 мм
Масса, кг
70 кг
Взрывозащищённый передвижной центробежный электронасос типа ГНОМ 10-10 Ех предназначен для откачивания загрязненных грунтовых и производственных сточных вод температурой до 35°С с рН=5-10, плотностью до 1100 кг/м³ плотностью твердых частиц не более 2500 кг/м³, содержащих механические примеси до 10% по массе и максимальным размером до 5 мм, а также с примесями сырой нефти до 10% по массе, в составе которой может быть до 3% серы в несвободном состоянии и парафина до 7%.

Допускается применение электронасоса, для откачивания в аварийных режимах среды, содержащей до 100% сырой нефти.
Продолжительность пребывания, включая работу, в таких средах не более 5 часов в течение срока службы до капитального ремонта.

Электронасос соответствует взрывозащищенному электро-оборудованию группы II с взрывобезопасным уровнем взрыво-защиты, температурным классом ТЗ по ГОСТ Р 51330.0-99, видом взрывозащиты - взрывонепроницаемая оболочка подгруппы II В по ГОСТ Р 51330.1-99.

Маркировка взрывозащиты электронасоса 1ЕхdIIВТЗХ по ГОСТ Р 51330.0-99. Электронасос допускается эксплуатировать во взрыво-опасных зонах, классов 1 и 2, опасных по парогазовоздушным смесям категорий IIА и IIВ групп Т1, Т2 и ТЗ по ГОСТ Р 51330.13-99 согласно главы 7.3 "Правил устройства электроустановок", изд. 6 1998 г.

Климатическое исполнение и категория размещения электронасоса У* по ГОСТ 15150-69 при этом верхнее значение температуры окружающего воздуха не более плюс 40°С.

Степень защиты от внешних воздействий IР68 ГОСТ 14254-80.

Насос погружной взрывозащищенный Гном 16-16 Ех в продаже по цене 0 руб. в Интернет-магазине Проф-инструмент с доставкой в Екатеринбурге и Свердловской области. Звоните по телефону +8 (800) 302-10-51.